WE’VE REIMAGINED ROOFTOP SOLAR

A TRILLION DOLLAR OPPORTUNITY

The 120 million commercial buildings in the U.S. alone spend more than $290 billion on energy, and those costs rise every year. We see these buildings as potential power plants with 87 billion square feet of flat rooftops as idle real estate assets. We’re unlocking these assets by delivering new economics of rooftop solar.

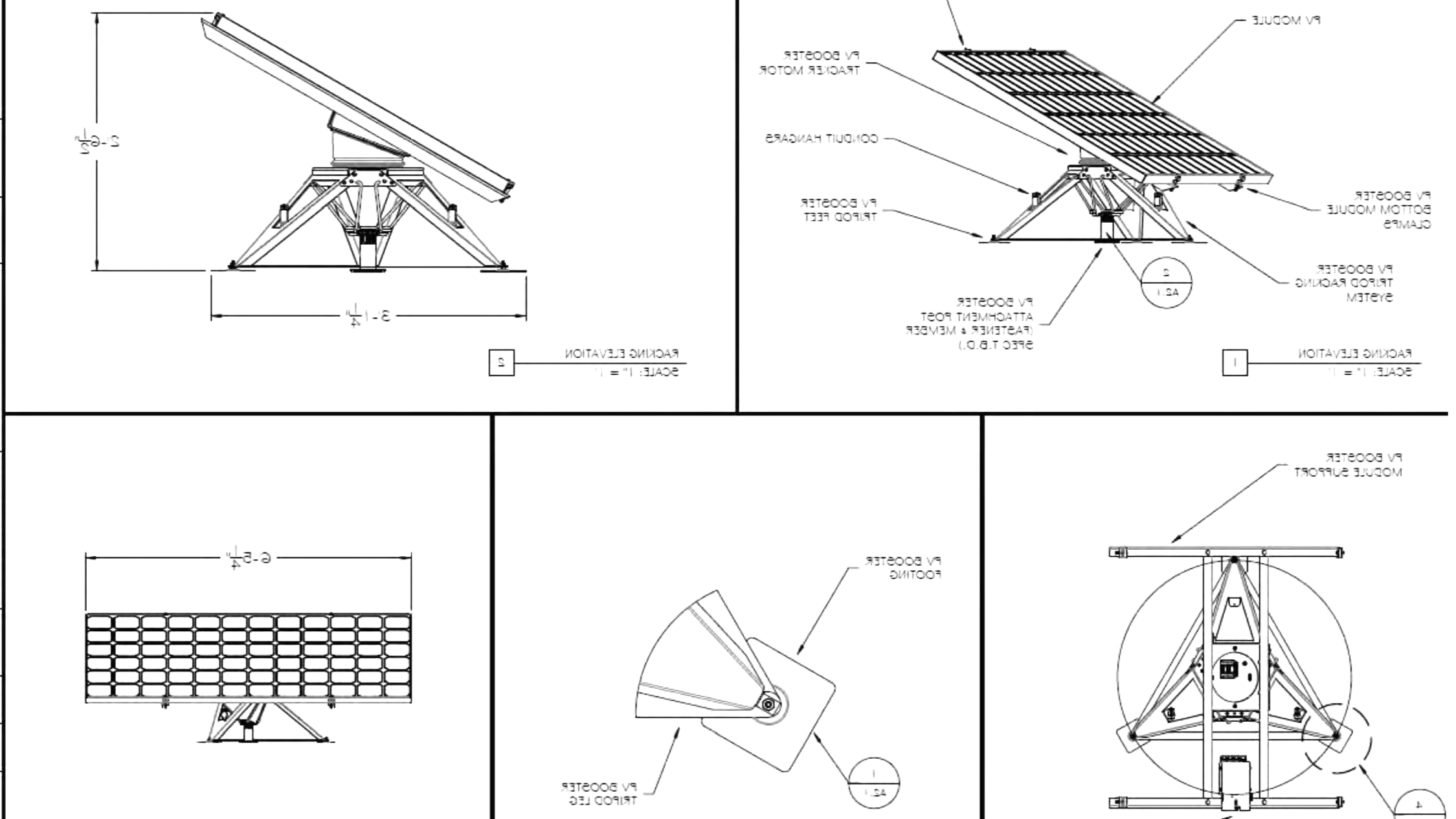
THE MOST POWERFUL RACK ON THE PLANET

WHY SUN-TRAP TRACKER

  • Designed for flat rooftops to increase commercial building value by $10-20/sqft

  • 30° tilted tracking provides up to 70% more energy to shrink project costs

  • Use as little as half the equipment to build projects faster and cheaper than ordinary fixed rooftop racking

  • Simple, strong, and reliable design certified by CSA and rigorously tested to UL 3703 standards

  • Built-in intelligence makes PV Booster easy to operate and maintain for decades

POWERFUL PERFORMANCE

We compared PV Booster to ordinary fixed mounted racking on a commercial rooftop to demonstrate the benefits of tracking the sun to your client’s bottom line.

POWERFUL RESULTS

After deploying a rooftop solar project powered by Sun-Trap Trackers, a building owner in Southern California realized a 225% cash ROI in just 18 months and attracted a Fortune 1000 tenant.

Our
brand vision

At the forefront of technological evolution, we relentlessly push boundaries to craft solutions that redefine possibilities. Our pioneering spirit drives us to innovate where others follow, ensuring that we remain ahead of the curve in shaping the future of technology.

Contact Us

Interested in working together? Fill out some info and we will be in touch shortly. We can’t wait to hear from you!